ETHOS HOMES 

building a sustainable tomorrow today 

20 Jordan Lane
Glenville, NY 12302

ph: 518-275-5731
fax: 518-373-9547

john@ethoshomesllc.com

Facebook

  • New ConstructionClick to open the New Construction menu
    • 1907 Hillside
    • 89 Hyde
  • SEE US AT WORK
  • Community Events
  • Awards
  • Home PerformanceClick to open the Home Performance menu
    • Does Your Home Perform?
    • What is a Comprehensive Home Assessment?
    • What you can expect
  • Who We Are
  • What We Do
  • Contact Us

89 Hyde BLVD. Ballston Spa, New York

    89 HYDE is a very exciting custom project that features very high insulation levels (12 inch thick walls filled with insulation), great design (designed to fit into its village setting), a cutting edge heating systems, among other features.  All of this is being built for a cost comparable to a production built home.  In short, this is a perfect example of what Ethos Homes stands for. 

    Please contact us if you would like more details about this unique home or if you would like to have a tour- even if you are not in the market or a new home right now.

    

    This home will be a part of the Capital Region Builders Association Parade of Homes in 2013.  

  • Frameworks.
  • The blueprints.
  • Solid attic.
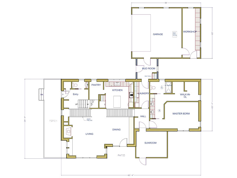
  • Floor plan (first floor)
  • Floor plan (second floor)
  • 89 HYDE
  • Intus Windows.
  • The 12" thick wall.
  • The Sunlight Well.
  • Preparing for the Parade of Homes.
  • Delphine on the porch. The all weather hardwood is Philippine mahogany.
  • Handmade built-in shelves throughout the house.
  • Wood shavings tell the story of a handmade house.

Copyright 2010 Ethos Homes, LLC. All rights reserved.

Web Hosting by Turbify

20 Jordan Lane
Glenville, NY 12302

ph: 518-275-5731
fax: 518-373-9547

john@ethoshomesllc.com

Facebook